Hier sind die Unterlagen zum Herunterladen.
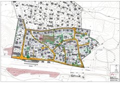
1.02 - Bebauungsplan Geltendorf Süd - südlicher Teil
Gesamtüberarbeitung (Entwurf)
Der Entwurf wurde gebilligt und es läuft die erneute Beteiligungsrunde von 18.12.2025 - 19.01.2026
Zum Inhalt, zur Navigation oder zur Startseite springen.
Gemeinde Geltendorf | Online: https://www.geltendorf.de/
Sie sind hier: Gemeinde Geltendorf > Wirtschaft und Bauen > Bauen > Bebauungspläne (in Aufstellung)
Gesamtüberarbeitung (Entwurf)
Der Entwurf wurde gebilligt und es läuft die erneute Beteiligungsrunde von 18.12.2025 - 19.01.2026
Hier sind die Unterlagen zum Herunterladen.
